Excelente piso exterior La Guindalera


Presentamos este luminoso y funcional piso de 109 m² construidos, ubicado en el consolidado y demandado barrio de La Guindalera, dentro del distrito de Salamanca de Madrid, una de las zonas con mayor calidad de vida y conectividad de la capital.
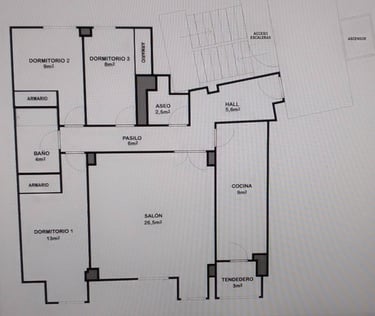
La vivienda, en quinta planta exterior, destaca por su gran luminosidad gracias a su orientación y por una distribución eficiente y bien pensada.
Cuenta con tres dormitorios espaciosos, dos baños (uno completo y otro de cortesía o servicio), y un amplio salón-comedor con salida a balcón, lo que aporta sensación de amplitud y apertura visual.
La cocina independiente totalmente equipada incluye una útil terraza tendedero, ideal para optimizar el día a día. La propiedad está equipada con aire acondicionado por conductos, calefacción individual por gas natural y armarios empotrados, y se beneficia de suelos de parquet que aportan calidez y un acabado elegante.
Dentro del edificio moderno con ascensor y servicio de portería física, la vivienda incluye plaza de garaje con acceso directo en ascensor —un valor diferencial relevante en esta zona— y también dispone de gimnasio comunitario como servicio adicional.
La localización en La Guindalera ofrece excelentes comunicaciones con transporte público, acceso fluido a principales vías urbanas y proximidad a una completa oferta de servicios: colegios, centros sanitarios, comercios y zonas verdes que aportan comodidad y calidad de vida en un entorno urbano consolidado.
5º planta exterior
109 m2
3 dormitorios
2 baños
Para entrar a vivir
Tendedero
1 plaza de garaje incluida
Edificio construido en 2003
Precio: 785.000€


































¿Alguna duda? ¿Quieres verlo?
Rellene el siguiente formulario y me pondré en contacto con usted lo antes posible
Contáctanos
C. de el Algabeño, 55, Local 7, Hortaleza, 28043 Madrid
C. de Padilla, 60, Salamanca, 28006 Madrid
pablo@wallestate.es
+34 648798045
© 2026. All rights reserved.


